Clean & Modern Layout, Hazel is packaged with awesome features, unlimited customizability, built-in mega menu, full WooCommerce design integration, and a super clean design, for minimal lovers.
Planos del Instituto – Junio 2016

Alzado a Calle Gaona y Detalles de Portadas
Este documento recoge el alzado principal del edificio histórico del IES Vicente Espinel (Gaona) hacia la calle Gaona, junto con los detalles arquitectónicos de sus portadas y elementos ornamentales.
El plano constituye una valiosa fuente para el estudio, conservación y restauración de la fachada, permitiendo apreciar la riqueza compositiva y el valor histórico del inmueble, uno de los más representativos del patrimonio educativo y arquitectónico de Málaga.
Para descargar plano, pulsar aquí.
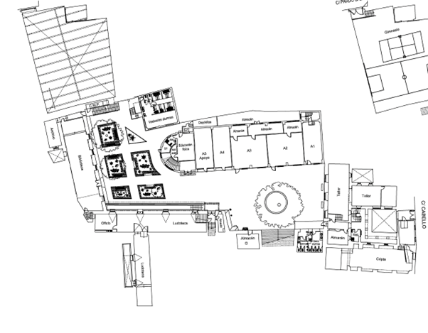
Plantas Semisótano y Gimnasio
Este plano muestra la distribución del semisótano y la zona del gimnasio del edificio histórico del IES Vicente Espinel (Gaona).
Permite apreciar la organización funcional de los espacios inferiores y su integración dentro del conjunto arquitectónico, aportando información clave para su documentación y conservación patrimonial.
Para descargar plano, pulsar aquí.


Planta Baja
El plano correspondiente a la planta baja del IES Vicente Espinel (Gaona) refleja la disposición de los accesos, dependencias principales y zonas comunes del edificio.
Su análisis resulta fundamental para comprender la estructura original y las sucesivas adaptaciones de un inmueble con más de siglo y medio de historia educativa en Málaga.
Para descargar plano, pulsar aquí.
Planta Primera
Este documento recoge la planta primera del instituto, donde se ubican diversas aulas y espacios docentes que conservan la esencia arquitectónica del diseño original.
El plano es una fuente valiosa para el estudio de la evolución funcional y educativa del centro a lo largo del tiempo.
Para descargar plano, pulsar aquí.


Planta Segunda
El plano de la segunda planta ofrece una visión detallada de los espacios superiores del edificio, reflejando su estructura interna y la continuidad de los elementos arquitectónicos característicos del Gaona.
Forma parte del conjunto de documentación técnica destinada a la preservación y conocimiento del patrimonio histórico educativo.
Para descargar plano, pulsar aquí.
Cubierta sobre Nivel de Planta 2ª
Este documento representa la cubierta del edificio sobre el nivel de la segunda planta, mostrando la estructura y configuración de los techos y elementos de protección.
El plano es esencial para la planificación de tareas de mantenimiento, restauración y estudio constructivo del inmueble histórico.
Para descargar plano, pulsar aquí.


Vista de Pájaro del IES Vicente Espinel
La vista de pájaro ofrece una representación general del edificio y su entorno, permitiendo apreciar la magnitud y armonía del conjunto arquitectónico del IES Vicente Espinel (Gaona).
Este documento combina precisión técnica y valor patrimonial, contribuyendo al reconocimiento del instituto como referente histórico y cultural del centro de Málaga.
Para descargar plano, pulsar aquí.